 |
Matronics Email Lists Web Forum Interface to the Matronics Email Lists
|
| View previous topic :: View next topic |
| Author |
Message |
Stressmerchant
Joined: 28 Oct 2014 Posts: 24
|
Posted: Sun Dec 14, 2025 1:40 am Post subject: Unusual Electric Problem |
|
|
I encountered an unusual electric problem with my Yak-52 today. I haven't yet been able to do any real trouble shooting, will only have time later in the week.
The aircraft has recently been for maintenance. Performed well for post-maintenance test flight, and no issues on the short ferry flight home.
Took a work colleague flying today. No issues on flight, landed, shut down normally. Once I had pushed the aircraft back in the hangar, I went to put the canopy cover over the aircraft - keeps dust off during the week. I noticed that a light was on in the rear cockpit - the warning light that the master switch in the front cockpit was on. I looked, master switch was off - as were all others. I then turned the master switch on and off, to see if that cured the problem. Not only did it fail to cure the problem, no electrics came on at all when the master switch was in the on poisition - except the rear cockpit light that remained illuminated. No electrics at all - no fuel tank bars, no gear lights, nothing registering on the voltmeter.
I didn't have time to investiage fully, so I just disconnected the battery and left it at that. But I am puzzled by this. The aircraft had been flying fine, no issues with anything electric, radios working, etc. But following the shutdown, nothing appears to work - except a single rear cockpit light telling me that the master switch is on.
Any ideas on where to start looking? I'm thinking that my first port of call wil be a voltage check on the battery - although they are fairly new, it could be that one has died completely.
| | - The Matronics Yak-List Email Forum - | | | Use the List Feature Navigator to browse the many List utilities available such as the Email Subscriptions page, Archive Search & Download, 7-Day Browse, Chat, FAQ, Photoshare, and much more:
http://www.matronics.com/Navigator?Yak-List |
|
|
|
| Back to top |
|
 |
Stressmerchant
Joined: 28 Oct 2014 Posts: 24
|
Posted: Fri Jan 09, 2026 11:02 pm Post subject: Re: Unusual Electric Problem |
|
|
Thought I'd give an update.
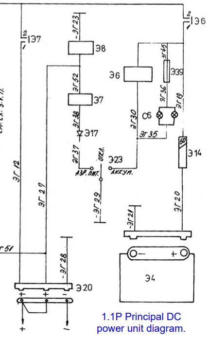
A big thanks to two members who emailed me with some of their thoughts on potential causes. My own (rough) understanding lead me to suspect a relay, which both the emails also included on the list of possible causes. To illustrate the relay position, the first pic is a snip from the wiring diagram that I have for the Yak-52. The relay in question is labelled "36" in the sketch.
With the help of the M-14P team I sourced a replacement relay, which was fitted today. It seems to have cured the problem. Holding thumbs that the problem stays cured.
For reference, the relay is shown on the attached photo. The relay is located on the right hand side of the firewall, on the cockpit side of the bulkhead. Access is via the panel on the right hand side. Access requires removal of a cover over the fuses and realys. The pic is taken looking forward.
You'll see that the relay (36) is directly next to another one (37). Relay 37 is, according to my undertsanding, used for switching in external ground power. I'm told that the relays are identical, and that I could have considered simply swapping the two as a check. A quick check with a multimeter suggested that relay 36 was fauly, so I didn't make extra work by doing a swap. But it would have been an option, particularly because I have used external power once in the 20 years I have owned the aircraft.
Other things I did check, with no problems noted:
- Master switch - continuity as expected when checking the three different switch positions
- Battery voltage good.
Hope the info can help others encountering this rare problem. Given the age of these aircraft, it would be interesting to know is there is a western raly (milspec, etc) that is a viable replacement.
| | - The Matronics Yak-List Email Forum - | | | Use the List Feature Navigator to browse the many List utilities available such as the Email Subscriptions page, Archive Search & Download, 7-Day Browse, Chat, FAQ, Photoshare, and much more:
http://www.matronics.com/Navigator?Yak-List |
|
| Description: |
|
| Filesize: |
2.83 MB |
| Viewed: |
967 Time(s) |

|
| Description: |
|
| Filesize: |
156.87 KB |
| Viewed: |
967 Time(s) |

|
|
|
| Back to top |
|
 |
|
|
You cannot post new topics in this forum You cannot reply to topics in this forum You cannot edit your posts in this forum You cannot delete your posts in this forum You cannot vote in polls in this forum You cannot attach files in this forum You can download files in this forum
|
Powered by phpBB © 2001, 2005 phpBB Group
|